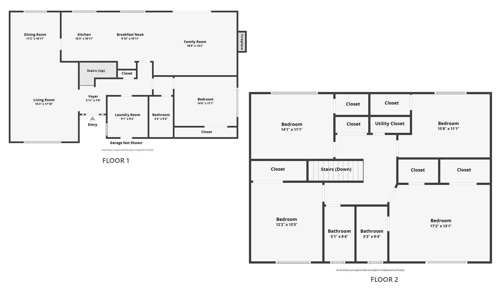
This spacious 5-bedroom, 3-bath home offers a formal living room, dining room, and an open eat-in kitchen connected to a large family room with fireplace. There is one bedroom and full bath on the main level. The primary suite, on the upper level, includes two walk-in closets and a jetted Jacuzzi tub. The other 3 bedrooms on this level, feature walk-in closets. The home also has a 3-car garage, double pane windows, two HVAC systems and a SunPower solar system. As a membership of the Rancho Santa Teresa Swim & Racquet Club, with its low dues, you will enjoy swimming, tennis, the clubhouse, organized classes and activities, plus socializing with your neighbors.